Vie sociale et solidarité

#3008 - Tiers lieu, création d'un espace associatif et culturel(2)
Canton où sera réalisée l'idée
4 - Canton d'Albertville 2
Lieu de réalisation de l'idée
73460 Notre-Dame-des-Millières, France
Description de l'idée
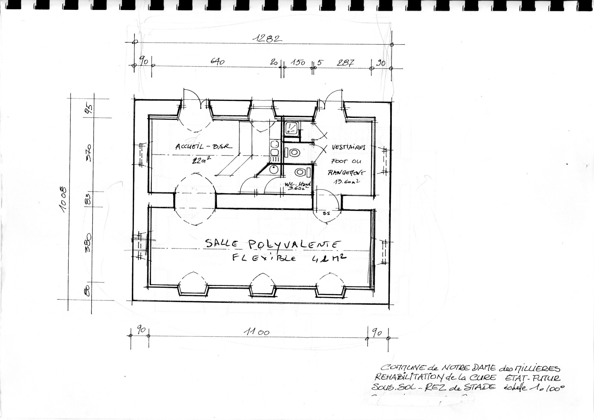
Bienvenue dans notre espace intergénérationnel associatif et culturel. « Le FABULIEU ». A sa création en mai 2022 la mairie a généreusement mis à notre disposition une pièce de 20 m2 dans lequel nous avons créé un café associatif et un dépôt de pain nous permettant de renouer le "vivre ensemble" , un lieu de rencontre et d'incubation des projets, regroupant une trentaine de bénévoles. Après une année d’existence nous comptons plus de 180 adhérents, notre succès est grandissant, les activités sont hebdomadaires et la programmation annuelle. Nous manquons cruellement d’espace, nous " squattons" ponctuellement la salle paroissiale pour nous permettre de maintenir nos activités (44 ateliers et animations de janvier à juin 2023).
Aujourd'hui la mairie nous offre un sous-sol de 80 m2 à aménager avec possibilité d’une terrasse . Avec nos bénévoles et la mairie, nous envisageons d'effectuer des travaux d'aménagement pour le transformer en une salle polyvalente flexible, adaptée à l'éducation populaire, l'accueil d'expositions, de projections, de conférences, d'ateliers et d'un espace jeunes ( babyfoot , jeux de société… ). Les travaux d'aménagement comprendront aussi l'installation d'un espace Accueil-bar, d'un vestiaire avec sanitaires, et un espace de stockage.
En ce qui concerne l'équipement multimédia, nous prévoyons d'acquérir un vidéoprojecteur, un écran, ainsi qu'une sonorisation et deux postes multimédia nous permettant aussi d'aider par des formations adaptées les personnes en difficultés avec le numérique. Un panneaux d'affichage numérique permettra d'informer les habitants des programmes et évênements proposés.
Pour le mobilier, nous envisageons l'acquisition de tables modulables, de chaises et de bancs afin de permettre une flexibilité d'aménagement de l'espace, et pour la terrasse des bancs et tables d'extérieur. Concernant la communication, nous prévoyons l'installation d'un panneau d'affichage numérique dans l'espace public afin de promouvoir les activités et les événements organisés.
chiffrage du projet
- Transformation du sous-sol en salle polyvalente flexible : 80 000 €
- Postes multimédia, vidéoprojecteur, écran, sono : 4 000 €
- Tables modulables, chaises et bancs : 3 000 €
- Panneau d'affichage numérique pour l'espace public : 10 000 €
- Dalle, bancs et tables d'extérieur : 3 000 €
soit un total de 100 000€
Document annexe pour votre idée :
Montant estimatif de l'idée
100000 €
Nom de la personne morale bénéficiant de la subvention (association, établissement scolaire, commune...)
Notre-Dame-des-Millières